Oferta zewnetrznej Sauny ogrodowej

W Związku z bardzo dużą ilością pytań, oraz trendami na rynku turystycznym oraz indywidualnym stworzyliśmy dla naszych obecnych oraz przyszłych klientów serie SAUN OGRODOWYCH.

Nasze sauny są obiektami całorocznymi stworzonymi dla celów indywidualnych oraz komercyjnych, Tworzymy je w nowoczesnym stylu dopasowanym do indywidualnych potrzeb naszych klientów .
W budowie naszych obiektów stosujemy drewno certyfikowane najwyższej jakości oraz materiały bedące przyjazne środowisku.
Dzięki zastosowaniu energooszczędnych urządzeń i oświetlenia , do minimum ograniczmy pobór energii w naszych obiektach .
Używamy markowych farbi i impregnatów spełniających surowe normy ekologiczne.

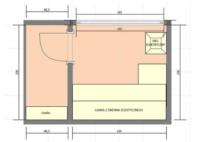
Dla podwyższenia standardu wypoczynku w naszych saunach stosujemy egzotyczne gatunki drewna na siedziska , oraz komfortowe lampy solne podwyższające jonizacje powietrza podczas seansów.
Dla umilenia czasu w saunie montujemy system nagłośnieniowy do odsłuchiwania ulubionych utworów lub innego rodzaju rozrywek.
Zapraszamy do zapoznania się z naszą oferta

Jeżeli jesteś zainteresowany, to zapraszamy do kontaktu.
Chętnie odpowiemy na wszystkie pytania.

0048600356002